Marathon Nextown, Dombivali
Off Kalyan-Shil Road, Dombivali
by Marathon Group
₹ 9,912/sqftRate
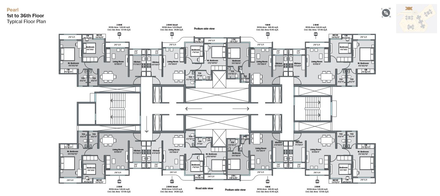
2 BHKConfiguration
22 FloorsHeight
Dec 2023Possession
P51700000686RERA No.
🎥 Project Video
🏢 About Marathon Nextown
Marathon Nextown is a Project by Mrathon Group. It is located off Kalyan Shill Road. 18 min from Dombivali station and 15 min from Diva Station. Adjacent to upcoming Airoli-Katai tunnel road. Get to Airoli in 15 mins. Close proximity to all the daily convenience. It offers 1 and 2 BHK Residences. Well designed apartments. Amenities include club house amenities and outdoor amenities. It is a RERA approved project.
✨ Amenities & Features
Aluminium Sliding Windows
Concealed Wiring
POP Walls
False Ceiling
Concealed Plumbing
Kids Play Area
Sports Facility
Intercom Facility
Power Back-up
Lifts
Security System
Clubhouse
Gymnasium
Children’s Play area
📍 Location Advantage
Airport120 min
Railway Station30 min
Hospital30 min
School25 min
💰 Price Analysis
₹ 9,912/sqft
Interested in Marathon Nextown?
Get the latest pricing, availability & floor plans from our team.
🏘️ Other Projects in Dombivali
Lodha Hanging Gardens
Lodha Group
Under Construction
R
Rustomjee Urban Woods - Palm
Rustomjee
Under Construction
M
Mahaavir Pride
Mahaavir Buildcon LLP
Sold Out
M
Metro Luxuria
Nivara Engineers Builders & Developers
Under Construction
R
Regency Sapphire
Regency Group
Under Construction
R
Regency Onyx
Regency Group
Under Construction
