Real Estate Mumbai
WhatsApp
Email Us
Sell & Buy
Immediate Requirements
Home
Residential
For Rent
For Sale
Submit Your Listing
Sell and Buy
Top New Projects
Property Videos
Commercial
For Rent
For Sale
Submit Your Listing
Research
Neighborhoods
Browse Locations
Browse Properties
Property Rates in Mumbai
Flat Rental Property Rates in Mumbai
Commercial Property Rates in Mumbai
Mumbai Property News
Ready Reckoner Rates in Mumbai
Buildings Directory
Relocation
Mumbai Demographics
Legal Documents
Buyers Guide
Sellers Guide
Our Immediate Requirements
Mumbai Property Feed
Mumbai Property Listings
About
About Our CEO
Our Articles
Services
For Owners
Expat Services
Legal
Home Loans
Contact
FAQ's
News
Buy,Sell,Rent?
WhatsApp
List Property
Proximus Chembur - P51800027318
Chembur, Plot No. 226, Main Post Office
Proximus - Chembur
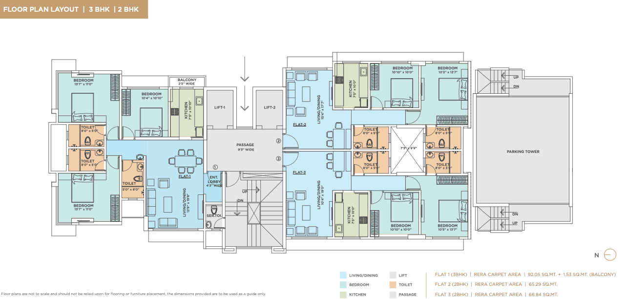
Apartment types, Areas & Prices
2 BHK
703 Sq.ft. Carpet ₹ 2.68 Cr All in
3 BHK
720 Sq.ft. Carpet ₹ 2.75 Cr All in
3 BHK
998 Sq.ft. Carpet ₹ 3.75 Cr All in
Proximus Chembur - P51800027318
Proximus QR Code
Proximus
MahaRERA -
P51800027318
Proximus is a Residential Project Developed by the Gee Cee Venture Ltd. It is located at Chembur. Chembur enjoys excellent connectivity to different parts of Mumbai and neighbouring areas. It is connected by road and rail networks, making it a convenient location for commuting. The Eastern Express Highway and the Eastern Freeway provide easy access to South Mumbai, while the Chembur Suburban Railway Station is a significant transportation hub for local train services. 3-4 minutes from Eastern Expressway and Chembur Station. 2 minutes from monorail Station. Connectivity to Vashi - Navi Mumbai. Close proximity to the social infrastructure. The Project offers 2 and 3 BHK Residences. Air-Conditioned Living Room and Bedrooms. Gypsum finished internal walls and branded fittings done. Modular kitchen with hob & chimney. Designer bathroom with branded sanitary ware and water heater. Amenities like state-of-the-art gym and rooftop garden.
Show More
Proximus - Chembur Image Gallery
About Gee Cee Venture Limited
Send Enquiry for
Proximus Chembur - P51800027318
Generate OTP
WhatsApp
or
Call
for immediate response.
Questions? Let's Chat
Need Help? Chat with us
Click one of our associates below
Sandeep Sadh
Founder & CEO
I'm Online
Pooja Batra
Director
I'm Online