Silver Serene QR Code
Silver Serene
MahaRERA - P51800032448
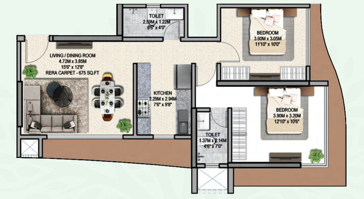
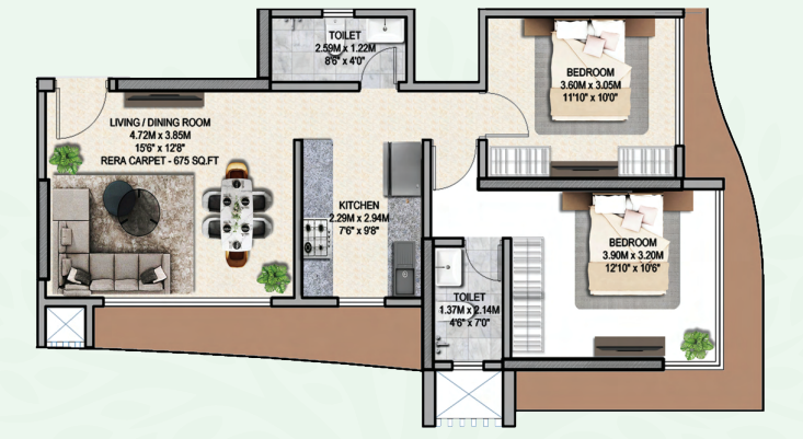
Silver Serene is a Residential Project Developed by the Silver Group. It is located at Goregaon West. The locality enjoys excellent connectivity to other parts of Mumbai. It is served by the Goregaon Railway Station, which is on the Western Line of the Mumbai Suburban Railway. The Western Express Highway, which runs through the area, provides convenient road access to various parts of the city. Public buses, auto-rickshaws, and taxis are readily available for local transportation. Just 7 minutes from Railway station and 2 minutes from S.V Road. Close proximity to the social infrastructure. It is a 21 storey tower offering 2 BHK Residences. Zero space wastage vaastu compliant homes. Low maintenance. 4 flats and 3 lifts each floor. Jain derasar within 2 minutes distance. Amenities include Terrace Garden, kid's play area, gym, double height lobby, walking track steam room, reading, gazebo sitting, yoga room, indoor games etc.
Show More